Cabinet Vision x2D CADHexagon
Cabinet Vision x2D CAD offers 2D CAD functionality ideal for architectural submittals and shop drawings.
Vendor
Hexagon
Company Website


Product details
Overview
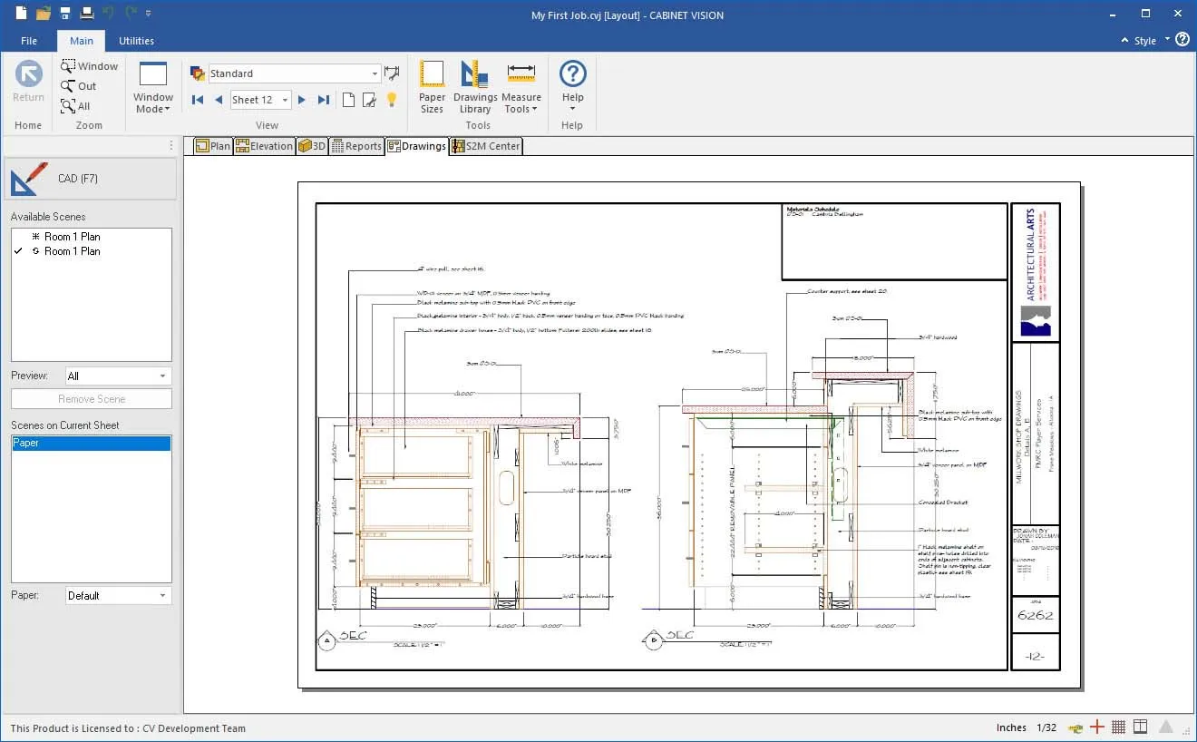
CABINET VISION x2D CAD is a specialized 2D CAD tool designed to streamline the creation of architectural submittals and shop drawings within the woodworking and cabinet manufacturing industries. By automating the generation of detailed, annotated drawings directly from your designs, it enhances communication of design intent to architects and contractors, reducing errors and improving efficiency.
Features and Capabilities
- Plan and Assembly Cross-Section Views: Generate detailed cross-sectional views for both plans and assemblies, providing comprehensive insights into design structures.
- Custom View Layers and Dimension Styles: Tailor view layers and dimension styles to meet specific project requirements, ensuring clarity and precision in your drawings.
- Save Drawing Scenes to Separate Files: Preserve drawing scenes independently, facilitating efficient organization and future reference.
- Live Drawing Scenes: Experience real-time updates to drawings as changes are made to assemblies, ensuring all stakeholders have access to the most current design information.
- User-Defined Drawing Library: Create and manage a personalized library of drawing elements for quick access and reuse in various projects.
- Assembly Leaders: Utilize assembly leaders to clearly indicate relationships and hierarchies within your designs, enhancing understanding and communication.
- Manipulation of 2D CAD Objects: Perform operations such as flip, mirror, rotate, trim, scale, stretch, and offset on 2D CAD objects, offering flexibility in design modifications.
- CAD Integration with Assemblies: Save CAD data alongside assemblies, ensuring consistency and ease of access across different components of your project.
- Creation of Live Data Tables: Develop live data tables within your drawings to organize and manage project information effectively, supporting seamless collaboration and data tracking.