Multivista SCAN TO PLANHexagon
Multivista professionals scan the site, process the data and leverage CAD drawings to ensure projects are built to plan.
Vendor
Hexagon
Company Website




Product details
Overview
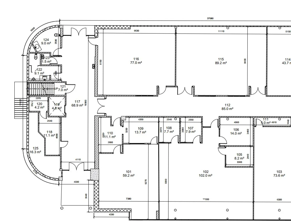
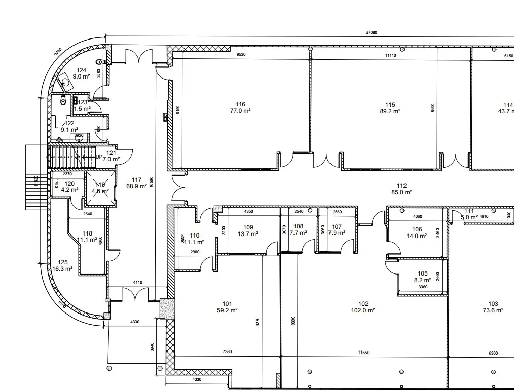
Scan-to-Plan by Multivista provides a seamless way to convert site plans into accurate, actionable digital models. Using advanced scanning and image-based technology, the product captures as-built conditions for construction projects. It improves project planning, reduces errors, and supports data-driven decision-making by offering precise and easily accessible plans.
Features and Capabilities
- Accurate Digital Models: Converts site plans into precise 3D digital models, ensuring high accuracy.
- Real-time Data: Provides real-time information, improving decision-making and reducing errors.
- Efficient Project Planning: Facilitates better planning by visualizing as-built conditions.
- Seamless Integration: Easily integrates with other project management tools for streamlined workflows.
- Enhanced Collaboration: Encourages team collaboration with accessible digital models on multiple devices.
- Error Reduction: Minimizes project delays and errors by providing detailed, up-to-date site data.
- Mobile-Friendly: Accessible across multiple devices, enabling on-the-go access.
Find more products by category
Construction SoftwareOtherProject, Portfolio & Program Management SoftwareView all