OpenPlant PIDBentley Systems
OpenPlant PID helps you produce intelligent piping and instrumentation diagrams faster and makes them widely accessible to all.
Vendor
Bentley Systems
Company Website



Product details
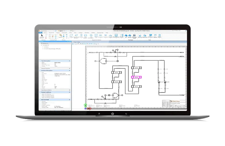
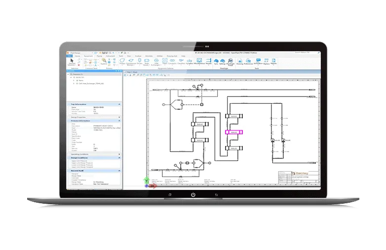
What Is OpenPlant PID? OpenPlant PID helps you produce intelligent piping and instrumentation diagrams faster and makes them widely accessible to all. Quickly accelerate your plant design process by:
- Using an intuitive user interface to reduce project start-up time
- Maintaining consistency of 2D and 3D designs
- Managing and editing design data through a cloud-based data manager from anywhere
- Managing tags consistently and accurately
Rapidly Create Intelligent P&IDs
- Accelerate your plant design process and deliver more accurate P&IDs to operations
- Rapidly create intelligent P&IDs with components verified against project piping specifications
- Work in a streamlined user interface featuring task-based navigation, convenient picklists, and a simple configuration for quick adoption and ease of use
Perform Consistent and Accurate Tag Management
- Enable a consistent tagging format that applies to all PID documents, ensuring that they follow project naming conventions
- Facilitate consistent tagging across 2D and 3D designs in PlantSight and avoid duplication
Work with Cloud-enabled Design Management
- Increase P&ID efficiency by working online, offline, or remotely, knowing your data is secure and up to date
- View and edit P&ID data from anywhere using web portal with Data Manager via PlantSight
Documents